Porte de Valenciennes, Lille
055 27
055 26
055 15
055 24
055 20
055 11
055 18
055 33
055 01
055 28
055 30
055 09
055 23
055 17
055 04
055 29
055 35
055 22
055 25
055 05
055 13
055 07
055 16
055 19
055 03
055 02
055 31
055 32
055 21
055 14
055 34
055 06
055 08
055 10
055 12
Description

Ce projet est composé de deux immeubles revêtus de panneaux de terre cuite émaillée vert de gris, au sein du lot 4.2 de la ZAC de la porte de Valenciennes.
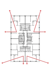
Autour d’un noyau compact accueillant l’ensemble des circulations et des pièces humides nécessaires, sont disposés 4 logements d’angle par palier, développant une séquence « en enfilade » salon/cuisine/loggia mettant en scène leur situation d’angle et permettant, depuis le salon, de profiter de 12 m de linéaire de façade avec de grands vitrages horizontaux en bandeaux sur allège.

Programme
75 logements collectifs sociaux
Lieu
ZAC de la Porte de Valenciennes, Lille
Procédure
Concours restreint lauréat
État
Livré
Aménageur
SPL Euralille
Urbaniste
MGAU
Maîtrise d'ouvrage
I3F Notre Logis
Maîtrise d’œuvre
NRAU (Architecte mandataire), SIBAT (BET TCE)
Équipe NRAU
Didier Numanovic
Entreprise
SPIE
Performances
Date
2017-2024
Photos
Salem Mostefaoui