Commissariat Beaujon, Paris 8
051B 15
051B 08
051B 14
051B 09
051B 07
051B 10
051B 02
051B 11
051B 13
051B 03
051B 06
051B 16
051B 01
051B 05
051B 04
051B 12
Description

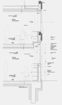
Le projet de commissariat constitue le socle d’un immeuble mixte (logements, commissariat, hôtel) à l’entrée du quartier Beaujon à Paris 8ème. L’immeuble présente une façade en pierre massive de Saint Maximin. L’aménagement intérieur met en valeur les matériaux bruts et nobles : affirmation de la structure béton laissée nue, cloisonnements en panneau bois, inox des meubles, sol en terrazzo coulé.
La lumière naturelle inonde les parties profondes du plan au travers des cloisonnements vitrés des bureaux.

Programme
Commissariat de proximité
Procédure
Concours restreint lauréat
Aménageur
SEM Pariseine
Urbaniste
LLTR
Maîtrise d'ouvrage
Elogie-Siemp pour le compte de la Préfecture de Police
Maîtrise d’œuvre
NRAU (Architecte mandataire), BMF (Economie), EVP (Structure), Choulet (Fluides), AFL (Acoustique)
Équipe NRAU
Sarah Kabbaj, Kevin Biot
Entreprise
Outarex - Spie Batignolles
Performances
RT2012, Plan Climat ville de Paris, Effinergie +, Certification Cerqual H et E profil A, Certification QUALITEL
Date
2016-2021
Photos
Salem Mostefaoui