Ecole Bruneseau, Paris 13
046B 20
046B 01
046B 21
046B 02
046B 15
046B 08
046B 07
046B 14
046B 17
046B 19
046B 12
046B 04
046B 06
046B 16
046B 03
046B 10
046B 09
046B 18
046B 11
046B 05
046B 13
Description

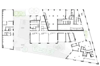
Cette école polyvalente de 8 classes constitue le socle d’un îlot mixte et métropolitain (logements, équipement, commerces, activités) du secteur Bruneseau à Paris 13e. Le groupe scolaire est composé de trois volumes distincts en béton sablé, reliés par un «bâtiment-pont» accueillant la bibliothèque, toute en transparence, offrant des vues lointaines aux petits usagers la pratiquant. La cour est conçue comme un lieu préservé des nuisances de la rue, riche de ses interactions avec les salles de classe et le centre de loisir.

Programme
Un groupe scolaire de 8 classes
Lieu
ZAC Paris Rive Gauche
Procédure
Concours en conception réalisation, lauréat
Aménageur
SEMAPA
Urbaniste
Ateliers Lion
Maîtrise d’ouvrage
Paris-Habitat OPH
Maîtrise d'oeuvre
NRAU (Architecte Mandataire), MGAU (Architecte Co-traitant), Roberta (Paysage)
Collaborateurs NRAU
Didier Numanovic, Léo Pollard
Entreprises
Léon Grosse
Performances
NF HQE Bâtiments Tertiaires, H&E option Performance – Effinergie +, Plan Climat Ville de Paris, Biodivercity
Date
2016-2021
Photographe
Salem Mostefaoui